Gucci US Stores
Structural Insight for Multiple Stores Nationwide
Gucci commissioned us to provide structural insight for multiple stores nationwide. Our efforts have graced iconic locales such as the Scottsdale AZ, Washington DC, Manhasset NY and the vibrant Somerset Mall in Troy Michigan, among others.
Agencie has a proven track record, having previously collaborated with global brands like Marc Jacobs, Ralph Lauren, and Zegna. Over time, we’ve honed our ability to work efficiently within large teams, accommodating various stakeholders often spread across different time zones, all while meeting unforgiving time constraints.
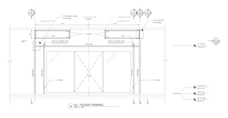
The facade of these boutiques feature the signature Gucci aesthetic. The facades marry calacatta marble with pistachio-green powder-coated mullions. Intricately assembled with honeycomb panels, structural steel, and aluminum rivets, the facade conceals a back-lit LED element and is adorned with planters brimming with foliage.

The glazing at Gucci stores are some of the largest IGU’s in North America. The IGUs were 130” x 236” and shipped directly from the fabricator in Canada and craned into site. The facade was designed with anti-reflective glass (blocking up to 98% of reflection) and low levels of “leopard-spotting.” The architectural glass appears virtually unseen.



SERVICES
- STRUCTURAL ENGINEERING
- ENCLOSURE ENGINEERING
LOCATION
- ATLANTA,GA
- WASHINGTON,D.C.
- MANHASSET,NY
- SCOTTSDALE,AZ
- TROY,MI
STATUS
- COMPLETED
Client
- Kering
Credits
- FANTETTI
- SPACE 4 ARCHITECTURE
TEAM
- Sarrah Khan, PE
- Nuria Forques Puigcerver
- Marina Saiz



