Gucci Miami Flagship
Engineering for Gucci's Eclectic New Home
Two storeys. 4,700 square feet. A flagship store for luxury powerhouse Gucci. Agencie’s engineering expertise was called upon to work in collaboration with the talented team at Space 4 Architecture for multiple Gucci stores nationwide. This included a new icon in the vibrant Miami Design District.
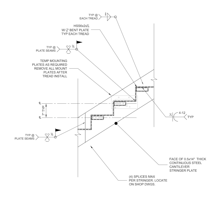
One of the focal points at Gucci’s flagship Miami store is the sweeping cantilevered staircase. Agencie engineered the structure, supporting five tons of steel over a lengthy 40ft span. For such an audacious design, understanding structural vibrations was key. As structural engineer, Agencie undertook vibration analysis using a 3D non-linear P-Delta methodology.
Agencie was also responsible for the fabrication model and drawings. These were developed by working closely with Milanese fabricator Arredo Quattro, honoring Gucci’s Italian roots. The staircase itself was flown in from Milan and installed by Milanese craftsmen.



The façade had to balance a luxury aesthetic with engineering prowess. It contrasts calacatta marble and pistachio-green powder-coated mullions, each concealing a back-lit LED element. Along the rooftop, planters were secured to enable an addition of lush, tropical greenery.
Adjacent to the storefront is a customized mural by Spanish artist Coco Capitan. Creating a distinct visual concept in a neighborhood known for design and culture was only the first challenge. Our engineers were responsible for ensuring a façade and landscaping that withstands rigorous wind forces and the High-Velocity Hurricane Zone.
Inside is a fusion of elegance and industry. A ceiling substructure suspends the interiors. Pink fabric walls give way to a marble mosaic floor. The soft, rich fabrics of upholstered ceilings and matelassé panels gracefully contrast mechanical display units and the concrete-on-metal-deck suspending the lights. At Gucci Miami, fashion meets art, execution meets aesthetic, and architecture meets engineering.
SERVICES
- STRUCTURAL ENGINEERING
- ENCLOSURE ENGINEERING
LOCATION
MIAMI,FL
STATUS
COMPLETED
Client
- Kering
Credits
- Fantetti
- Space 4 Architecture
TEAM
- SARRAH KHAN, PE
- NURIA F. PUIGCERVER
- MARINA SAIZ



