Marc Jacobs Flagship
Channeling the Brand’s Essence

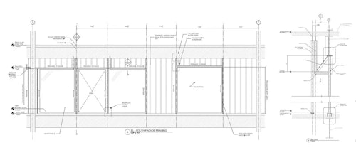
A premium flagship store. One of the busiest streets in New York City. Multiple stakeholders. Agencie was selected for our diligence and experience in making projects like this happen. Appointed as structural engineer, we worked closely with the talented STUDIOS Architecture team.
Interior and exterior storefront engineering was our primary focus. As well as our engineering credentials, we’ve honed our ability to work efficiently within large teams. We’re experienced in accommodating a variety of stakeholders, often spread across different time zones. We’ve previously collaborated with global brands like Gucci, Ralph Lauren, and Zegna. Above all, we understand how to get results amongst the demands, sensitivity, unforgiving time restraints, and other challenges associated with such a high-profile project.

Services
- STRUCTURAL ENGINEERING
- ENCLOSURE ENGINEERING
Location
- New York, NY
Client
- Marc Jacobs
Credits
STUDIOS
Team
- SARRAH KHAN, PE
- ZARINA GRAN
- RUYING LU